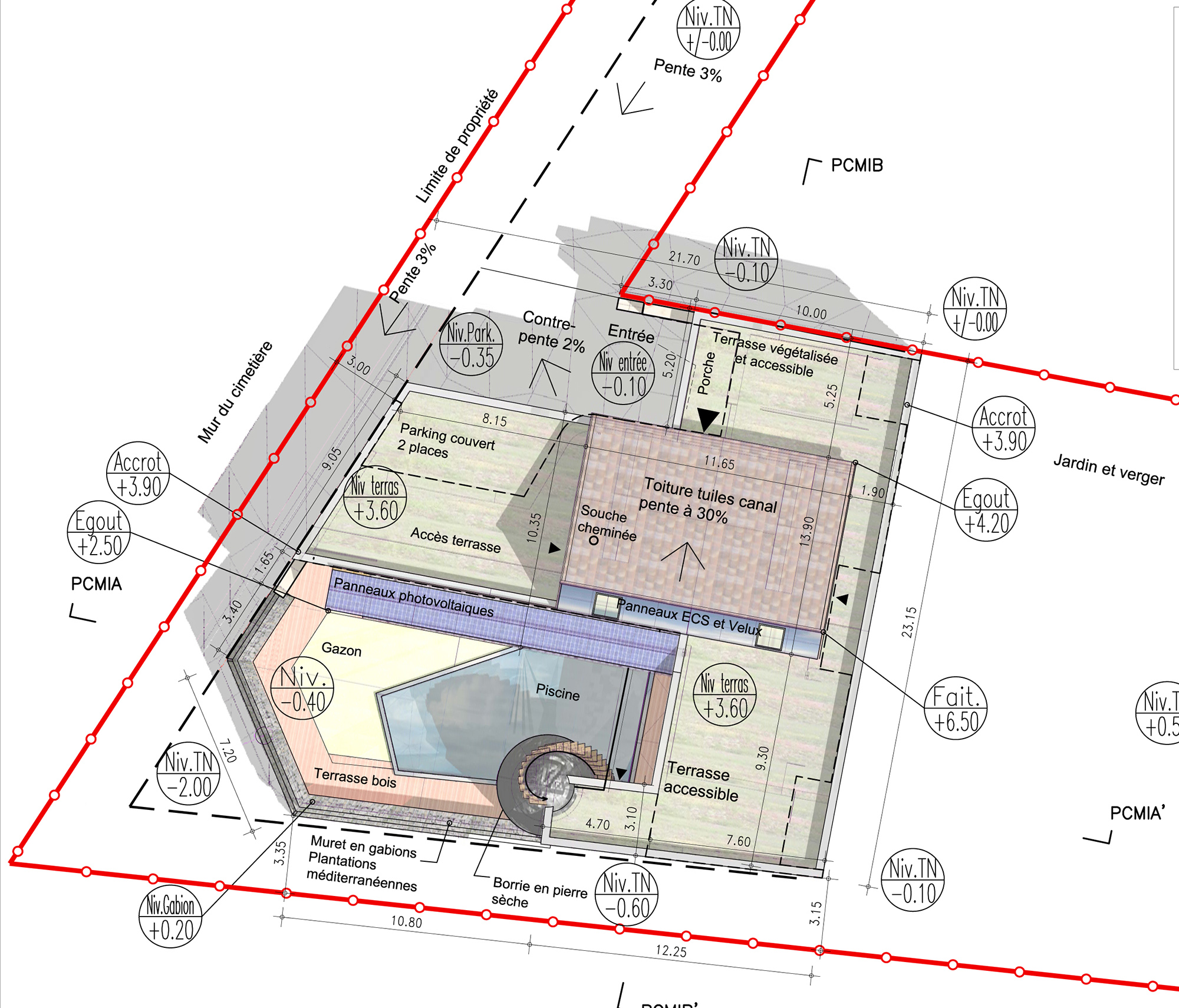
Le projet est réalisé sur la dernière parcelle d’un lotissement à Pomas, petit village de l’Aude entre Carcassone et Limoux.
Les contraintes sont fortes :
– une des limites est constituée par le mur du cimetière traité en panneaux de béton préfabriqué
– la vue magnifique sur la chaîne des Pyrénées doit aussi est protégée du vent froid et violent
– l’ensemble du projet doit rester bas pour ne par occulter la vue des habitations situées au dessus.
Le maître d’ouvrage, entrepreneur, va réaliser une maison exemplaire à énergie positive : isolation renforcée, panneaux solaires thermiques et photovoltaïque, poêle à bois, VMC double flux avec puis canadien,….
Le projet contemporain a été accepté dans le périmètre d’un Monument Historique.






